casetta cm. 200x200 - casette legno in kit di montaggio

Falegnameria SERENA online
Falegnameria Serena
Vai ai contenuti

casetta cm. 200x200

Casette in legno
  • Produzione e commercio casette in legno proposte nella formula
  • Fai da te,
  • kit di montaggio assistito in presenza nella fase di inizio montaggio,
  • Trasporto e montaggio



Linea struttura Massiccia:
  • Pareti 30mm
  • Travatura tetto a porata 120kg. mtq
  • Pavimento e Tetto 19 mm
  • Infissi con vetro
  • guaina catramata leggera
  • Listoni di appoggio a terra impregnati in autoclave

Accessori a preventivo:
Impregnamnte , guaine colorate ardesiate, gronda, montaggio , impregnatura
LISTINO 2023 CASETTE PROFESSIONALI FORNITE IN KIT DI MONTAGGIO ASSISTITO
LISTINO IN FASE DI AGGIONAMENTO
Modello
Misura ingombri esterni
prezzo IVA compresa
massiccio 30mm                
 
cm. 220x220

€.1660
massiccio 30mm                
                
cm. 220x280
€.1830
massiccio 30mm

cm. 260x220
€.2028
massiccio 30mm

cm.300x260
€.2340
prezzi: Iva compresa
Linea montaggio assistito con nostro aiuto inizio lavori
Trasporto  € 0.80 km. percorso (a preventivo)
misure e ingomri in pianta casetta uso giardinaggio
Modello cm. 200x200
vendita e montaggio casetta per giardino di alta qualità
Modello cm. 200x260
disegno,progetto in pianta casetta legno
casetta in legno alta qualità sistema blockhaus
disegno,progetto in pianta casetta legno
Modello 240x200

casa in legno, porta e finestra con vetri
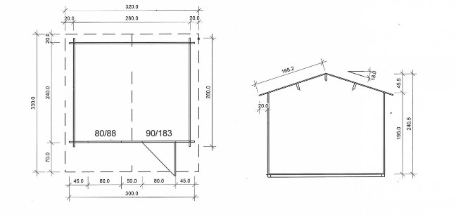
disegno in pianta e ingombri casetta legno
Modello cm. 280x240
casetta con portae finestra con vetri ampia sporgenza del tetto su ingresso
Su misura:
modifiche a richiesta del cliente
Vetrina Online proposta da Falegameria Serena Reggio E.
ci trovi anche su EBAY e Amazon
Falegnameria Serena
via Roncaglio 65/b 42025 Cavriago RE - P. iva 02259240352
Torna ai contenuti